Studio Nieruchomości – Biuro nieruchomości w Bielsku-Białej

Pod branże Beauty lub inna działalność

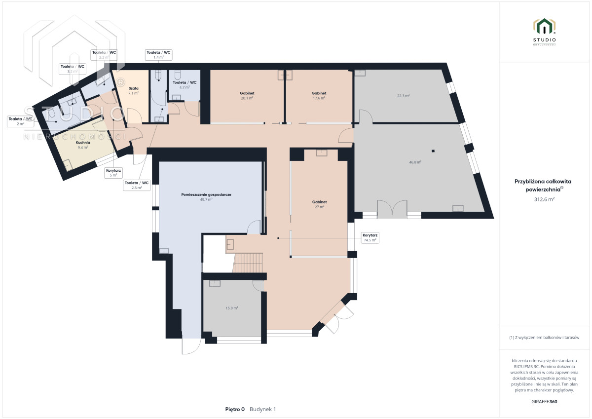
lokalizacja: Bielsko-Biała, Górska

2 310,00 PLN

110,00 PLN

Opis nieruchomości

Lokalizacja: Bielsko-Biała, ul. Górska 6 -  okolice Bulwarów Saraceńskich
Powierzchnia: ok. 21m2


Posiadamy w tej lokalizacji więcej lokali:
Parter:
50m2
27m2
16m2
18m2
20m2
69m2

Piętro:
13m2
13m2
43m2 


Opis nieruchomości i jej rozkładu:
Lokal o powierzchni 21m², idealny pod działalność biurową, kosmetyczną (posiada aktualne pozwolenia Sanepid), medyczną lub inny dowolny rodzaj usług.


Części wspólne to: WC dla niepełnosprawnych, dodatkowe WC, część socjalna z kuchnią, szatnia


Informacje o budynku:
Obiekt w doskonałym stanie technicznym, wykończony w standardzie premium. Teren wokół nieruchomości jest zagospodarowany i utrzymany - znajduje się tu piękny ogród oraz 10 miejsc postojowych. Dodatkowym atutem jest bezpośrednie sąsiedztwo dużego miejskiego parkingu przy Bulwarach Saraceńskich.

Lokalizacja i co jest w pobliżu:
Budynek położony w zielonej i spokojnej okolicy, z doskonałą komunikacją z centrum Bielska-Białej oraz drogami wylotowymi. Do drogi ekspresowej S1 można dojechać w ok. 3 minuty. W pobliżu znajdują się tereny rekreacyjne, punkty usługowe oraz dobra infrastruktura miejska.

Opłaty:
Dodatkowo do czynszu płatne utrzymanie części wspólnych (toalety, lobby z poczekalnią, teren w koło budynku)

Informacja o świadectwie charakterystyki energetycznej:
Nieruchomość nie posiada aktualnego Świadectwa/Certyfikatu charakterystyki energetycznej - zostanie sporządzony w najbliższym możliwym terminie i przedłożony do umowy najmu.

Jako Biuro Nieruchomości Studio Nieruchomości pobieramy wynagrodzenie w formie prowizji za usługę pośrednictwa. W ramach usługi pośrednictwa odpowiadamy za komfort przy Państwa transakcji oraz bezpieczeństwo na każdym etapie procesu sprzedaży/kupna. Zajmujemy się pomocą w dopełnieniu formalności wiążących się ze zbyciem lub nabyciem nieruchomości. Z przyjemnością przekażemy Państwu kontakt do naszego eksperta finansowego, który indywidualnie dobierze dla Państwa najlepszą ofertę kredytową.

Powyższy opis nie stanowi oferty handlowej w rozumieniu art. 66 Kodeksu Cywilnego, a dane w nim zawarte mają charakter informacyjny.

Kontakt do opiekuna:

Studio sp. z o.o.

Kosma Kąkol
Nieprawidłowy adres E-mail
Mapa

Strona korzysta z plików cookie w celu realizacji usług zgodnie z Polityką prywatności. Możesz określić warunki przechowywania lub dostępu do cookie w Twojej przeglądarce.