Studio Nieruchomości – Biuro nieruchomości w Bielsku-Białej

Lokal 100 mkw. w samym Centrum!

lokalizacja: Czechowice-Dziedzice, Centrum

5 500,00 PLN

55,71 PLN

Opis nieruchomości

LOKAL HANDLOWO-USŁUGOWY W ŚCISŁYM CENTRUM CZECHOWIC-DZIEDZIC

Mam przyjemność zaprezentować przestronny lokal użytkowy o powierzchni ok. 100 m², zlokalizowany w ścisłym centrum Czechowic-Dziedzic - przy ul. Piłsudskiego. To idealna propozycja dla firm poszukujących widocznej, reprezentacyjnej siedziby lub miejsca do prowadzenia działalności handlowo-usługowej.

LOKALIZACJA
Nieruchomość położona jest w doskonale skomunikowanym punkcie miasta - w bezpośrednim sąsiedztwie sklepów, punktów usługowych, urzędów i komunikacji miejskiej. Wejście bezpośrednio z ulicy, co zapewnia świetną ekspozycję oraz łatwy dostęp dla klientów.

OPIS LOKALU
Lokal znajduje się na parterze dwupiętrowego budynku z 2000 roku.
Wnętrze w bardzo dobrym stanie technicznym, gotowe do aranżacji według potrzeb najemcy.
Wyposażony w klimatyzację oraz światłowód.

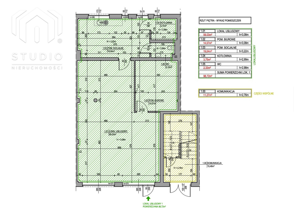
Rozkład pomieszczeń:
- sala sprzedaży / biuro - 59,03 m²
- pomieszczenie biurowe - 14,57 m²
- pomieszczenie socjalne - 19,04 m²
- kotłownia - 3,75 m²
- wc - 2,33 m²

WARUNKI NAJMU:
Czynsz: 5 500 zł netto / miesiąc (należy doliczyć podatek VAT)
Media: według zużycia (prąd, woda, gaz, wywóz nieczystości)
Kaucja: 13 530 złotych

Dostępność: od 1 lutego 2026 roku

INFORMACJE DODATKOWE
Lokal nie posiada aktualnego Świadectwa charakterystyki energetycznej - zostanie ono sporządzone i przedłożone przed podpisaniem umowy najmu lub aktu notarialnego sprzedaży.

ZAPRASZAM NA PREZENTACJĘ

Jeśli szukasz lokalu w atrakcyjnej lokalizacji z doskonałą ekspozycją i potencjałem do prowadzenia różnorodnej działalności - ta oferta jest właśnie dla Ciebie!

W ramach usługi pośrednictwa pobieramy wynagrodzenie w formie prowizji, odpowiadamy za komfort przy Państwa transakcji oraz bezpieczeństwo na każdym etapie procesu najmu/wynajmu. Zajmujemy się pomocą w dopełnieniu formalności wiążących się ze zbyciem lub nabyciem nieruchomości. Z przyjemnością przekażemy Państwu kontakt do naszego eksperta finansowego, który indywidualnie dobierze dla Państwa najlepszą ofertę kredytową.

Powyższy opis nie stanowi oferty handlowej w rozumieniu art. 66 Kodeksu Cywilnego, a dane w nim zawarte mają charakter informacyjny.

Kontakt do opiekuna:

Studio sp. z o.o.

Monika Szymończyk
Nieprawidłowy adres E-mail
Mapa

Strona korzysta z plików cookie w celu realizacji usług zgodnie z Polityką prywatności. Możesz określić warunki przechowywania lub dostępu do cookie w Twojej przeglądarce.